
DF燃油锅炉
DF燃油锅炉和大蒸发量锅炉采用顶燃结构。对于大型油轮项目,压力从0.7MPa到1.8MPa,蒸汽的快速燃料部分蒸发量可以从15t/h到50t/h,压力从0.7MPa到1.8MPa。
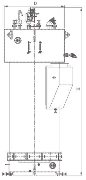
| 型号 | 压力(Mpa) | 直径(mm) | 高度(mm) | 重量(ton) |
| DF15-0.7 | 0.7 | 3228 | 7500-9000 | 29 |
| DF20-0.7 | 0.7 | 3428 | 8000-9200 | 32 |
| DF25-0.7 | 0.7 | 3436 | 8000-9200 | 34 |
| DF50-0.7 | 0.7 | 4520 | 9000-10500 | 55 |
*如果客户要求的产品不在我们的生产范围内,我公司可以根据客户的需求进行设计和制造。
平面CAD图
锅炉的尺寸(不包括保温层)。锅炉的重量不包括配件,燃烧器,耐火材料和水。蒸发量为给水温度60℃/80℃时。
